Als Fahrzeug haben wir den Mercedes Sprinter (MB 519), 4×4 (Allrad zuschaltbar) mit der 3-Liter-Motorisierung, 190 PS, gewählt. Es sind ja serienmäßig schon etliche elektronische Unterstützungen vorhanden. Wir haben zusätzlich noch diverse Ausstattungsvarianten wie z.B. Automaticgetriebe (7-G-Tronic) den automatischen Abstandsassistenten (Distronic), LED-Beleuchtung, Klimaanlage, Fahrer- und Beifahrerschwingsitze etc. dazu genommen. Wir wollen viel mit diesem Fahrzeug unterwegs sein, da soll es dann auch ein bisschen komfortabel sein.
Beim Aufbau sind wir schon etwas stärker vom normalen, serienmäßigen Grundriss des Modells LBX 365 der Fa. Bimobil abgewichen. Mit Querbetten im Alkoven (normal sind Längsbetten) können wir sehr gut leben. Dort ist auch ein großes Ausstellfenster eingebaut durch das man „Sterne gucken“ kann und über welches man auch auf das begehbare Dach gelangt.
Uns waren u.a. eine große Kühl-/Gefrierkombi und ein Backofen wichtig. Auch sollte die Küche etwas mehr Platz bieten. Durch den Umbau der Betten und des Sanitärbereiches mit der daran anschließenden Kühlkombination ist nun auch insgesamt etwas mehr Platz – in der Breite – vorhanden als im Serienmodell.
An Stelle des serienmäßig im Küchenbereich eingebauten Kompressorkühlschrankes haben wir dort noch 3 weitere Schubladen einbauen lassen. Das bringt schon eine Menge zusätzlichen Stauraum für die reisende Sterneköchin 🙂
Der Kleiderschrank – mit Hängemöglichkeit – befindet sich bei unserem Fahrzeug auf der Beifahrerseite. Der dort serienmäßig befindliche Gaskasten entfällt, wir haben einen 110-L-Gastank einbauen lassen der sich an der Fahrerseite befindet. Das entspricht bei 80%tiger Füllung (mehr darf und geht nicht) gut vier 11kg-Gasflaschen, damit kommt man schon ziemlich weit.
Auch haben wir „vorsichtshalber“ schon direkt eine Klimaanlage einbauen lassen. Die befindet sich unterflur im doppelten Boden. Dadurch bedingt ist dieser im mittleren Bereich etwas schmaler als im Serienmodell, aber es ergab sich dann auch, dass der doppelte Boden komplett bis zum Fahrerhaus durchgezogen wurde / werden musste. Dadurch ist einerseits im vorderen Bereich dort noch einiges an Stauraum hinzu gekommen, andererseits ist die Stolperfalle von der Küche zum Fahrerhaus nicht mehr da.
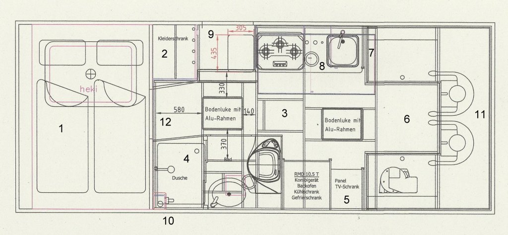
Original – LBX 365 Grundriss der Fa. Bimobil

1 Alkovenlängsbetten, 2 Kleiderschrank
3 doppelter Boden / Staufläche, 4 Sanitärbereich
5 Schrank / Fernsehboard, 6 Hecksitzgruppe
7 Raumteiler, 8 Küche, 9 Einstiegsbereich
10 Schrank / Gasflaschenraum, 11 Heckstauraum / Fahrradgarage
12 Durchstieg Fahrerhaus
„Fälschung“ 🙂 – Grundriss unseres ErWin

Ziffern soweit identisch, Nr. 1 – Querbetten, Nr. 10 – Gastank 110 l unter dem Fahrzeug